Location appartement Montévrain : grand appartement f2 avec jardin d’hiver a loue

  • 923€
Montévrain 77144, France
Location

Location appartement Montévrain : grand appartement f2 avec jardin d’hiver a loue

Montévrain 77144, France
  • 923€

Description

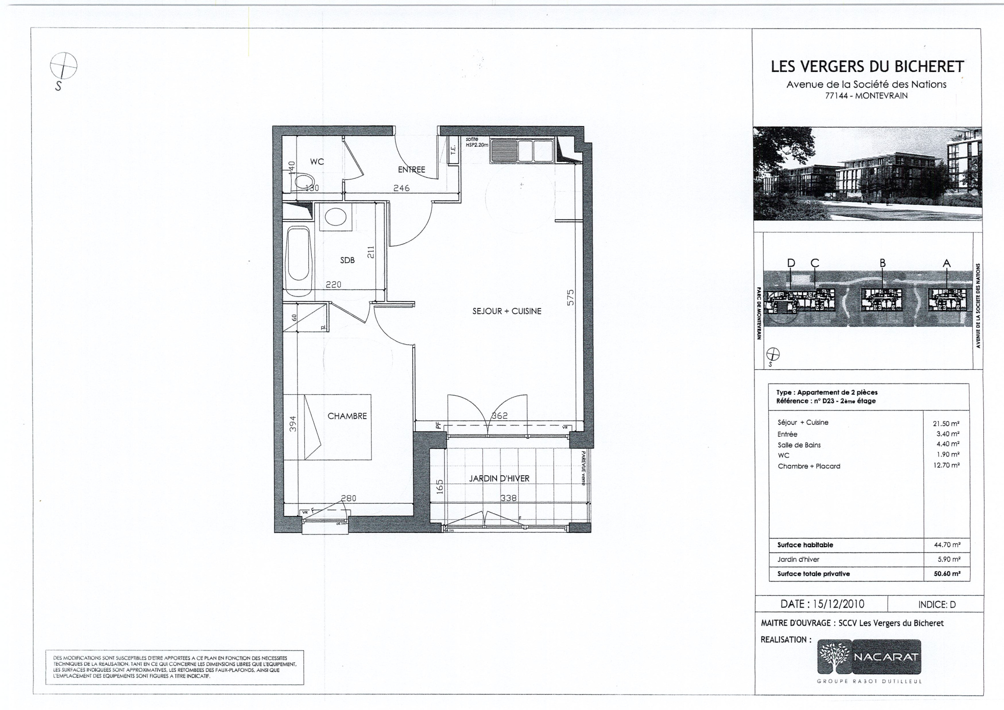
Annonce immobilière pour un appartement disposant d’une chambre à Montévrain. Cet appartement d’une surface de 44.7m2 se compose d’une entrée, d’un sejour avec coin cuisine équipée, une chambre avec placard, une salle de bain, un wc. Des fenêtres à double vitrage assurent le calme du lieu. Est conforme aux critères du label BBC garantissant une forte isolation thermique. À l’extérieur, le domicile vous offre un charmant jardin d’hiver occupant une surface de 5.90m2, ce qui amène la superficie à vivre à 50.6m2. Il s’agit d’une habitation au deuxième niveau ; le bâtiment a un ascenseur. La construction de la propriété date de 2012. Elle donne accès à une place de parking en sous sol. Pour ce qui est du loyer, le montant proposé par le propriétaire s’élève à 923 euros par mois. Caution exigée : 761 EUR. Si vous souhaitez organiser une visite de ce logement, entrez rapidement en contact avec votre agence Agence CSM VAL D’EUROPE.

Aperçu

  • Appartement
  • Type de bien
  • 1
  • Chambre
  • 1
  • Salle de bains
  • 44.7
  • 2012
  • Année de construction

Details

Mis à jour le janvier 14, 2026 à 5:10 am
  • Référence: 1_2600
  • Prix: 923€
  • Surface: 44.7 m²
  • Chambre: 1
  • Pièces: 2
  • Salle de bains: 1
  • Année de construction: 2012
  • Type de bien: Appartement
  • Statut de propriété : Location
  • Exposition: Sud
  • Ascenceur: OUI
  • Nombres de lots: 159
  • Montant de Charges annuelles:
  • Chauffage format: Electrique
  • Chauffage type: Electrique
  • Chauffage Energie: Electrique
  • Date de libération: 21/01/2026
  • Dépôt de garantie: 761 €
  • Montant de charges mensuel: 162 €
  • Format de charges: 2
  • Honoraires locataire: 586.46 € dont état des lieux 135.44 €
  • Honoraire état des lieux: 135.44 compris dans les honoraires
  • Surface extérieur: Balcon 5 m² Terrasse 0 m²

Compare listings

Comparer